HeadHub

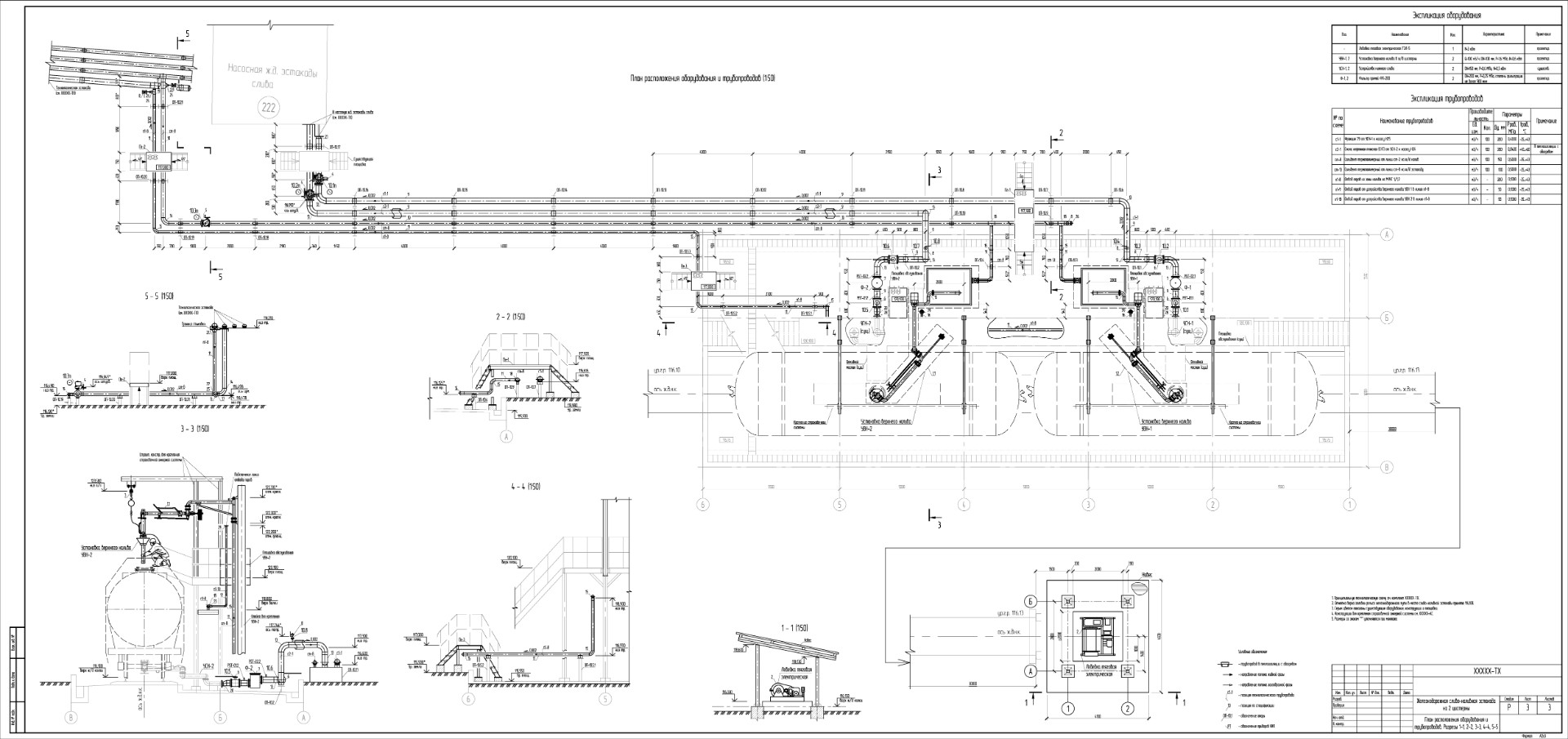
Железнодорожная сливо-наливная эстакада на 2 цистерны (перевооружение)

Железнодорожная сливо-наливная эстакада на 2 цистерны (перевооружение)
Комплект марки "ТХ"
Октябрь, 2025