HeadHub

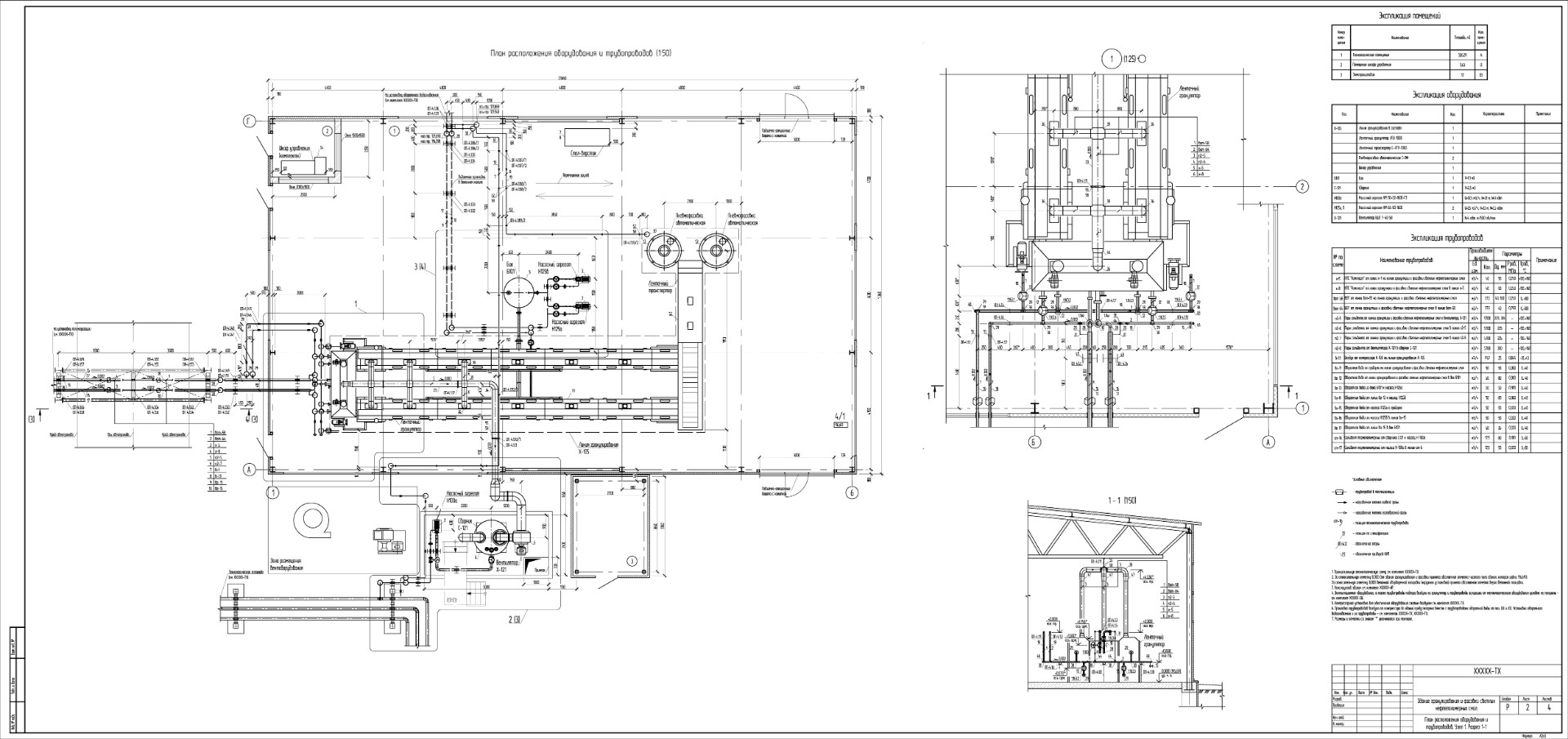
Здание гранулирования и фасовки нефтеполимерных смол

Здание гранулирования и фасовки нефтеполимерных смол
Комплект марки "ТХ"
Октябрь, 2025